«solea» Etagenwohnung an Süd-West Lage, Haus 38
«solea» – Ihr Zuhause am Sonnenberg
Am beliebten Sonnenberg zwischen Luzern und Kriens entstehen zwei kleine Mehrfamilienhäuser mit je fünf Eigentumswohnungen an einmaliger Wohnlage. Lassen Sie sich von der eindrucksvollen Weitsicht verzaubern und geniessen Sie Ihren neuen Lebensmittelpunkt an naturnaher, erhabener Lage.
Die zwei architektonisch stimmungsvoll gestalteten Häuser am oberen Siedlungsrand sind sorgfältig in die Topografie des Sonnenberghügels eingebettet. Mit einer Vielfalt an durchdachten und hochwertig ausgebauten Wohnungen von 3,5- bis 5,5-Zimmern bietet das Projekt beste Voraussetzungen für Familien, Paare und Einzelpersonen jeden Alters.
Freuen Sie sich auf Ihr neues Zuhause ab Sommer 2025.
Ihre Objektanfrage
Vielen Dank für Ihr Interesse.
Gerne stellen wir Ihnen unser Exposé elektronisch zur Verfügung.
"*" kennzeichnet erforderliche Felder
Herzlich willkommen bei der Firma Place Premium Real Estate AG, Ihrem Immobilienpartner in der Zentralschweiz.
Wie können wir Sie unterstützen?
"*" kennzeichnet erforderliche Felder
solea – Axonometrie Wohnung 38.21
solea – Etagenwohnung West (Visualisierung)
solea – Etagenwohnung Ost (Visualisierung)
solea – Gartenwohnung West (Visualisierung)
solea – Attikawohnung Innen (Visualisierung)
solea – Attikawohnung Terrasse (Visualisierung)
solea – Pilatusblick (Visualisierung)
solea – Aktuelle Situation (Fotographie)
solea – Grundriss WHG 38.21
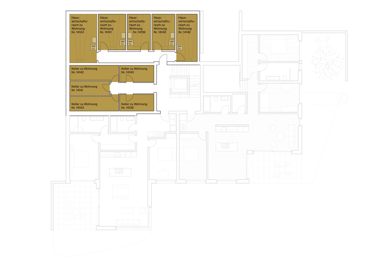
solea – Kellergeschoss Haus 38
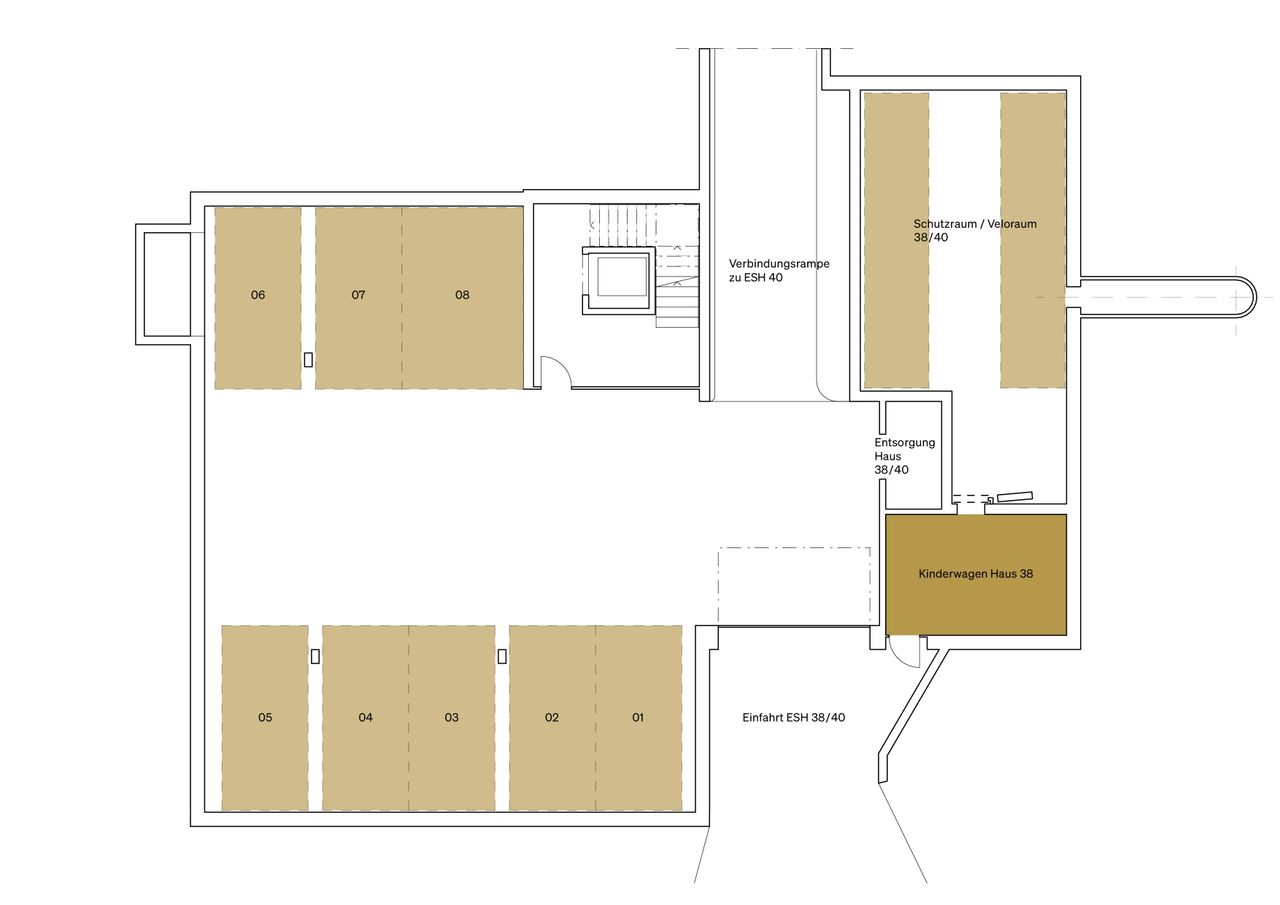
solea – Parkgeschoss Haus 38
Die zentrale Lage im Herzen der Schweiz überzeugt.
Mit rund 26’000 Einwohnern ist Kriens die zweitgrösste Stadt im Kanton Luzern und liegt am Fuss des Pilatus. Der Sonnenberg liegt an der Stadtgrenze zu Luzern und verwöhnt Sie dank der traumhaften Südlage mit fantastischer Weitsicht auf See- und Alpenpanorama und eröffnet damit den Blick auf das Beste, was Luzern zu bieten hat. Die beiden Wohnhäuser am erhöhten, westlichen Siedlungsrand von Kriens bieten ausserordentliche Standortqualitäten. Direkt hinter den Wohnungen befindet sich der einmalige Naturraum Sonnenberg. Bestens erreichbar mit dem privaten Fahrzeug oder dem öffentlichen Verkehr.
Ihre Objektanfrage
Vielen Dank für Ihr Interesse.
Gerne stellen wir Ihnen unser Exposé elektronisch zur Verfügung.
"*" kennzeichnet erforderliche Felder
Herzlich willkommen bei der Firma Place Premium Real Estate AG, Ihrem Immobilienpartner in der Zentralschweiz.
Wie können wir Sie unterstützen?
"*" kennzeichnet erforderliche Felder