Modernisiertes Bernerhaus mit 2 grosszügigen Wohnungen
Charmantes Bernerhaus aus dem Jahre 1924, welches im Jahr 2002 umfassend und sehr stilvoll saniert und erweitert wurde. Die Grundstücksfläche beträgt 918 Quadratmeter und umfasst 2 Wohnungen.
Das Haus kann selber bewohnt werden (Mehrgenerationenlösung) oder auch als Investitionsmöglichkeit dienen.
Herzlich willkommen bei der Firma Place Premium Real Estate AG, Ihrem Immobilienpartner in der Zentralschweiz.
Wie können wir Sie unterstützen?
"*" kennzeichnet erforderliche Felder
Idyllische Lage in Krauchthal BE
Grosszügige Garten und Attika-Maisonette Wohnung
Wohnzimmer – Attika Wohnung
Wohnen und Essen – Attika Wohnung
Küche – Attika Wohnung
Bernerhaus von 1924
Wohnzimmer – Gartenwohnung
Küche – Gartenwohnung
Badezimmer – Gartenwohnung
Sitzplatz – Gartenwohnung
Charmantes Zwei-Parteien Haus
Vogelperspektive
Grundriss Attika – Galerie
Grundriss Attika – Dachgeschoss
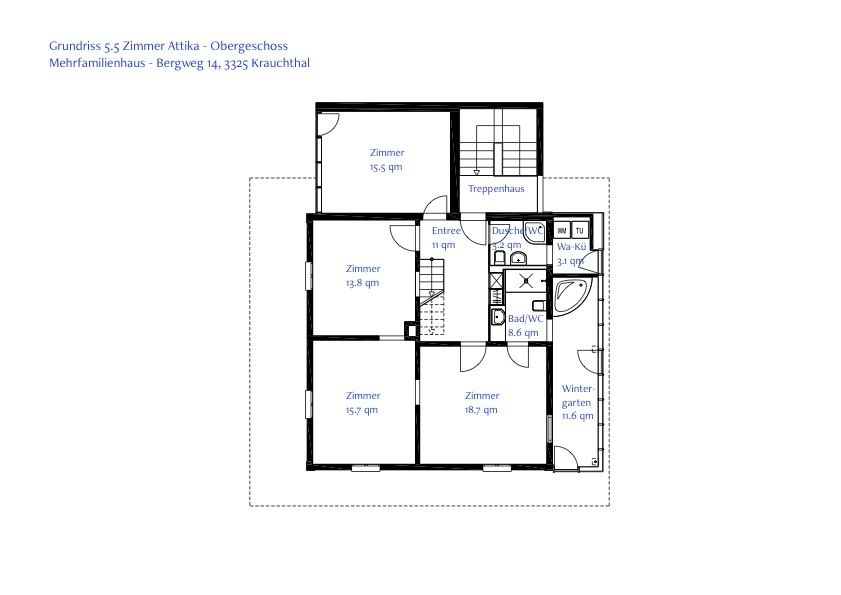
Grundriss Attika – Obergeschoss
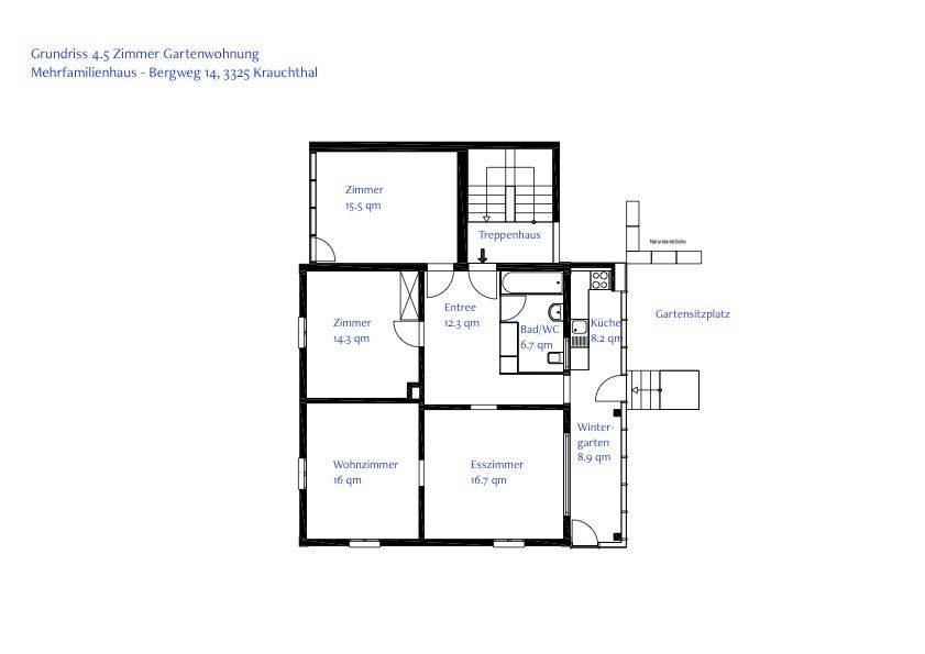
Grundriss Gartenwohnung
Grundriss Untergeschoss
Zwischen Bern und Burgdorf – stadtnah und doch auf dem Lande – liegt die Gemeinde mit den Dörfern Krauchthal, Hetiswil und Hub. Das Haus liegt an absoluter Ruhelage im Dorfteil Hetiswil, am Rande eines Einfamilienhausquartiers an leichter Hanglage mit süd-westlicher Ausrichtung und perfekter Besonnung. Der Weitblick in die Natur und die umliegende Hügellandschaft verleiht einem das Gefühl, sofort anzukommen und sich wohl zu fühlen.
Herzlich willkommen bei der Firma Place Premium Real Estate AG, Ihrem Immobilienpartner in der Zentralschweiz.
Wie können wir Sie unterstützen?
"*" kennzeichnet erforderliche Felder