Beeindruckende Weitsicht über den Sempachersee
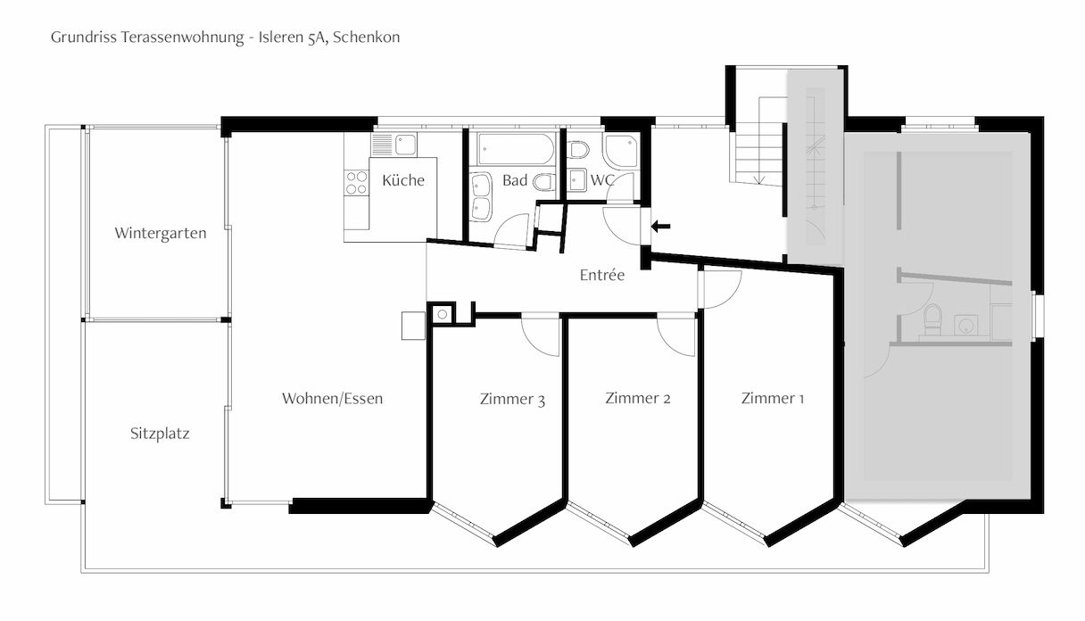
Die im 1. OG gelegene 4.5 Zimmer Terrassenwohnung überzeugt durch den modernen, flexiblen Grundriss und die hochwertige Ausstattung. Sie bietet neben einer sehr guten Besonnung eine imposante, unverbaubare Fernsicht auf den Sempachersee, die Alpenkette sowie die Stadt Sursee.
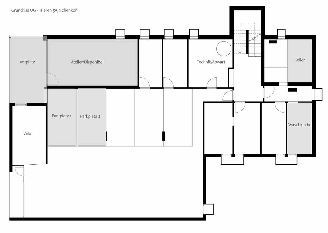
Ein eigenständiges Atelier im UG ergänzt das Raumangebot und lässt sich als Einliegerwohnung, Büro oder zur Vermietung nutzen.
Herzlich willkommen bei der Firma Place Premium Real Estate AG, Ihrem Immobilienpartner in der Zentralschweiz.
Wie können wir Sie unterstützen?
"*" kennzeichnet erforderliche Felder
Gedeckter Sitzplatz mit Seeblick
Eindrucksvolle Aussicht von der Terrasse
Wintergarten mit Falttüren
Wohnen und Essen
Küche
Badezimmer
Zimmer 1
Atelier – Wohnen und Schlafen
Blick Richtung Sursee
Hausansicht Richtung See
Hausansicht von der Strasse
Grundriss Terassenwohnung – Isleren 5A
Grundriss Atelier – Isleren 5A
Grundriss UG – Isleren 5A
Oberhalb des alten Dorfkerns von Schenkon liegt die Wohnung an erhöhter Lage circa 1.5 km vom Dorfzentrum entfernt. Die Zufahrtsstrasse zur Wohnung endet als Sackgasse.
Die am schnellsten mit dem motorisierten Individualverkehr von Schenkon aus erreichbaren Zentren sind Sursee (6 Min.), Reinach (AG) (16 Min.) und Zofingen (20 Min.). Luzern ist in einer guten halben Stunde (30 Min.) zu erreichen. Durch Autobahnanschlüsse in beide Richtungen ist Schenkon sehr gut an das Strassenverkehrsnetz angeschlossen.
Herzlich willkommen bei der Firma Place Premium Real Estate AG, Ihrem Immobilienpartner in der Zentralschweiz.
Wie können wir Sie unterstützen?
"*" kennzeichnet erforderliche Felder